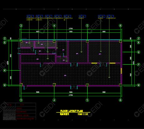
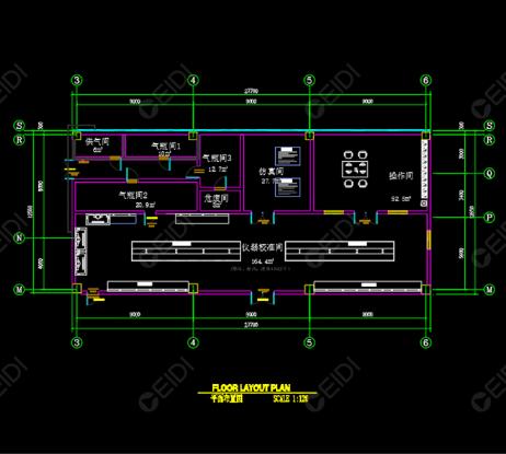
項目成果:針對航天恒嘉實驗需求,CEIDI西遞以科研實驗配置為依托,為其合理規劃設計檢測、校準、檢驗、認證空間以及配套技術專業分項設計(暖通、給排水、電氣、消防、純水、工藝管道、特殊供氣等)。 以滿足其檢驗檢測、精密儀器對用水、用電、用氣,以及使用環境的特殊要求。
項目地點:浙江省嘉興市
航天恒嘉環境分析實驗中心由CEIDI西遞公司提供EPC總包服務(設計、裝修、系統建設等),現已投入使用。西遞公司擁有設計乙級資質,施工建筑總承包三級資質,裝飾裝修二級資質、機電安裝三級資質、凈化一級資質、環保...
實驗室潔凈室規劃設計
實驗室潔凈室裝修施工
潔凈工程EPC總承包
咨詢電話:400-666-1693
浙江航天恒嘉數據科技有限公司是為落實浙江省與中國航天科技集團戰略合作內容,由嘉興港區管委會下屬國資公司與航天恒星科技有限公司聯合創辦的高新技術企業,是航天技術在智慧化工園區領域應用的一次全新探索。航天恒嘉依托母公司航天恒星(航天五院503所)在大系統工程項目管理、系統集成、云計算、大數據、物聯網、衛星遙感和導航等領域的基礎優勢,通過自主研發、資本運作、產業聯盟和優秀供方選擇等方式,整合完善智慧城市和行業信息化建設產業鏈,全面推進基礎數據采集、系統架構設計、核心產品研發和行業應用示范等,開展以智慧化工園區為代表的智慧城市和行業信息化系統建設,形成智慧城市建設綜合解決方案,打造可擴展、可剪裁、可復制、可推廣的智慧園區等產品,面向政府、企業、公眾提供服務。
航天恒嘉環境分析實驗中心位于浙江省嘉興市,CEIDI西遞是浙江航天恒嘉的長期合作服務商,為其規劃設計多個專業分析檢測實驗場所。
針對航天恒嘉實驗需求,CEIDI西遞以科研實驗配置為依托,為其合理規劃設計檢測、校準、檢驗、認證空間以及配套技術專業分項設計(暖通、給排水、電氣、消防、純水、工藝管道、特殊供氣等)。 以滿足其檢驗檢測、精密儀器對用水、用電、用氣,以及使用環境的特殊要求。
地址:上海市虹橋商務區富力環球中心
COPYRIGHT ?2011-2026 西遞凈化 版權所有 律師聲明:本網站板式設計及所有圖片一律不得轉載或鏡像。 網站備案號: 滬ICP備11045524號-15
全國服務熱線
地址:上海市虹橋商務區富力環球中心
網站備案號: 滬ICP備11045524號-15/p>