首頁 >> 凈化工程 >> 生物醫藥凈化工程 >> 生物制藥GMP潔凈車間

凈化工程
  • 組培實驗室裝修工程:建筑平面布置和結構技術
組培實驗室裝修工程:建筑平面布置和結構技術

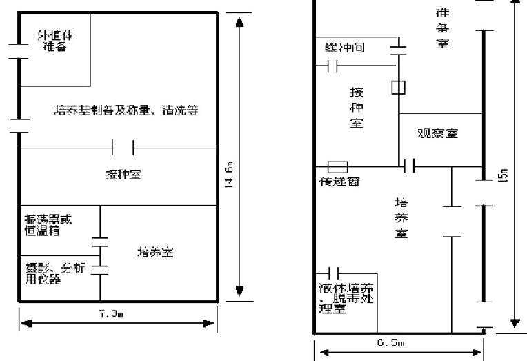
完整的組培實驗室包括化學實驗室、洗滌室、無菌操作室、培養室、細胞學實驗室,此外還應有一個進行育苗的溫室或大棚。組培實驗室的建設裝修,為方便日常工作并減少雜菌污染,應設走道,人員從外邊進入,先經過一個緩沖走道,再進緩沖間。 一、組培實驗室裝修建設的總體要求 1. 實驗室選址避開污染源,水電供應充足、交通便利。 2. 保證實驗室環境清潔,可設計過道、設備防塵、外來空氣的過濾裝置。 3. 實驗...

立即咨詢 咨詢電話:400-666-1693

內容介紹

完整的組培實驗室包括化學實驗室、洗滌室、無菌操作室、培養室、細胞學實驗室,此外還應有一個進行育苗的溫室或大棚。組培實驗室的建設裝修,為方便日常工作并減少雜菌污染,應設走道,人員從外邊進入,先經過一個緩沖走道,再進緩沖間。

 

一、組培實驗室裝修建設的總體要求

1. 實驗室選址避開污染源,水電供應充足、交通便利。

2. 保證實驗室環境清潔,可設計過道、設備防塵、外來空氣的過濾裝置。

3. 實驗室必須滿足實驗準備、無菌操作和控制培養三個基本的工作需要。

4. 實驗室各分室的大小、比例要合理。培養室與其他分室(除馴化室外)的面積之比為3:2。培養室的有效面積占培養室總面積的2/3,與生產規模相適應。

5. 明確實驗室的采光、控溫方式,應與氣候條件相適應。一般采用人工光照和恒溫控制。實驗室可設計為密封式或半地下式。

6. 電源并經專業部門設計、安裝和驗證合格之后,方可使用,應有備用電源。

7. 實驗室建造滿足組培的需要

 組培實驗室裝修工程-上海植物組織培養潔凈室裝修設計總包公司CEIDI西遞

二、組培實驗室三大功能區的建設要求

1. 準備區的大小依甲方房間結合生產量而定,一般由更衣間、風淋室,配藥室、洗瓶室、灌裝室和消毒室組成。

2. 更衣間放在外,主要供更換衣帽、鞋子等。風淋室位于更衣間與接種區和培養區之間。配藥室主要是進行組培科研或生產的培養基制取,房間應干燥整潔,無流動風影響電子精密天平的稱量。洗瓶室主要是清洗組織培養用的玻璃或塑料組培瓶,應配置上下水,便于周轉清洗。灌裝室主要是進行培養基的分裝,面積適宜,便于工作。消毒室主要是進行分裝后組培瓶的高溫高壓消毒,應配有合理功率的線路,安裝有排氣扇。

3. 接種區和培養區放在內間,主要供無菌接種操作和細胞培養,房間應不受日光直射,大小適當,高度適宜(2.6m)。房間過大,清掃和消毒不便;過小,操作不便;頂部過高會影響紫外線的有效消毒效果。墻壁應光滑無死角,以便清洗和消毒。無菌接種區和培養區應為密閉式,設置空氣消毒用的紫外線燈、空氣過濾凈化器裝置。

 

三、組培實驗室裝修的建筑平面布置說明:

由于組培室要求人、物分流,潔污分流,并要保持各潔凈操作間的靜壓梯度,因此,在組培實驗室建設工程中CEIDI西遞凈化提出如下建議:

1. 各凈化操作間集中設置獨立前室為氣閘,氣閘室與各操作間同時相通,確保低潔凈區的空氣不向高潔凈區滲透。

2. 無菌區工作人員經過更衣室更衣換鞋更衣風淋室接種室和培養室。

3. 實驗室物流由外走廊經過機械連動鎖自消毒傳遞窗消毒后進入緩沖走廊后再經過不銹鋼傳遞窗進入各操作室。

 

四、組培實驗室裝修之結構技術要求

1. 組培實驗室裝修工程之結構部分:采用CEIDI西遞品牌凈化施工彩鋼板,實驗室吊頂頂板采用手工單玻媄巖棉夾芯板厚為0.426的鋼板,實驗室隔墻及護墻采用手工巖棉夾芯彩鋼板板厚為0426mm的鋼板,本材料采用插接方式,表面光滑不積塵不染塵阻礙微生物的滋生,密封性能好。車間設計吊頂高度2.6米,室內做鋁合金噴塑圓弧角處理,達到不積塵不染塵;凈化密閉門采用雙密封凈化型材施工,做到良好的密閉效果,門上設置固定觀察窗;固定觀察窗采用5毫米厚浮法玻璃,窗框采用圓弧角型材;施工所用鋁合金型材均經過噴涂處理,表面光滑圓潤,美觀大方,不積塵染塵。

2. 組培實驗室裝修工程之地坪部分:采用橡塑地板,厚度2毫米 ,表面密實,無起沙、空鼓、裂縫。顏色艷麗,防靜電性能恒久不變,可承受中等以下負荷,耐高溫。在滿足使用的基礎上,可以起到裝飾的作用,耐磨、耐洗刷、防塵、防滑、性能優良,顏色和光澤均勻一致,適用于各種規格、各種級別的實驗室的涂裝。

3. 組培實驗室裝修工程之送回風過濾系統:組合式送風凈化器對空氣進行過濾無隔板過濾后送到實驗室內,以達到實驗室內部的十萬級凈化效果。送風口濾紙采用進口防潮防火玻璃纖維材料,對0.5微米的塵埃粒子過濾效率達到99.99%。初效過濾器一般為板式結構,濾網外框為鍍鋅板壓型,兩面用壓型鍍鋅鋼板網加強,內部濾料為三層錦綸凸網。材料為非燃性,過濾效率G2(計重效率≥60%), 初阻75Pa,終阻150Pa,過濾效率F3(計數效率50%;根據濾料性能不同,中效過濾器的過濾效率可達F5)。

4. 組培實驗室裝修工程之氣流組織及過濾器配置:均采用頂送側回風的方式;送風口均安裝在頂板上。凈化空調系統除送風采用粗、中、高過濾器外,對房間其下側風口均安裝黑網過濾。凈化空調系統的回、排風系統,須經過濾,去除有害物質后,方可排入大氣中。

5. 組培實驗室裝修工程之房間壓差控制:房間保持正壓,以抵制外來空氣污染;每個房間設有壓差控制系統更加需要調節壓差,采用美國進口指針式壓差表讀數靈敏度高。

相關案例RELATED PRODUCTS

TOP

400-666-1693

180 1646 0418