首頁 >> 凈化工程 >> 醫院醫療凈化工程 >> DSA手術室凈化設計

凈化工程
  • DSA介入手術室裝修設計建設規范:布局規劃、設備安裝與驗收
DSA介入手術室裝修設計建設規范:布局規劃、設備安裝與驗收

隨著介入醫學的飛速發展,利用數字減影血管造影系統(DSA)設備開展的介入治療已成為 21 世紀臨床醫學發展的趨勢。因其機房建設和設備安裝的特殊性,也越來越引起關注。少數醫院設立了專門的介入中心,容納 1-3 臺以上的 DSA,包括有多種機型,參照手術室進行管理。多數醫院則把DSA設備一般安裝在放射科, 由放射科進行管理。 CEIDI醫院醫療手術室相關文章推薦: 1.醫院輸血科實驗室建設方案 、設...

立即咨詢 咨詢電話:400-666-1693

內容介紹

隨著介入醫學的飛速發展,利用數字減影血管造影系統(DSA)設備開展的介入治療已成為 21 世紀臨床醫學發展的趨勢。因其機房建設和設備安裝的特殊性,也越來越引起關注。少數醫院設立了專門的介入中心,容納 1-3 臺以上的 DSA,包括有多種機型,參照手術室進行管理。多數醫院則把DSA設備一般安裝在放射科, 由放射科進行管理。

DSA介入手術室裝修設計



CEIDI醫院醫療手術室相關文章推薦:

1. 醫院輸血科實驗室建設方案 、設計布局、管理。輸血科凈化裝修施工

2. 潔凈手術室工程凈化裝修建設標準與規范依據

3. 手術室凈化工程:層流手術室的功能參數及平面設計

4. CCU病房凈化設計,CCU病房設計裝修基本原則和配置

CEIDI醫院醫療手術室潔凈設計施工案例:

1. 上海國際醫學中心凈化裝修工程

2. 江蘇中新棠醫療無塵GMP凈化車間裝修工程

3. 上海時代天使醫療器械潔凈室裝修工程


本文將以鄭州大學第一附屬醫院介入科(簡稱:鄭大一)唯邁醫療極光智能七軸平板血管造影機(簡稱:唯邁極光)的安裝實例,從布局規劃、機房裝修、設備安裝、設備驗收使用 4個階段,系統闡述 DSA介入手術室裝修設計建設的原則和重點。

一、DSA手術室裝修設計關于設備機房和導管室建設的原則

1)明確 DSA 設備和導管室的定位

2)合理選址,因地制宜

3)科學設計流程

4)嚴格規范安裝設備;

5)制定完善的操作、使用制度并嚴格執行;

6)注意未來新技術使用的擴展空間。


DSA實驗室裝修設計

DSA介入手術室建設


二、DSA手術室設計關于設備機房的規劃選址

1. 明確 DSA 設備和導管室預期的定位。

按功率的大小一般分為大C、中C、小C三種,根據每個醫院的需求不同,一般采用中C以上功率的DSA。另外,根據 C 臂數量分為單 C 臂和雙 C 臂,其中雙 C 臂對機房的要求更高;單 C 臂還有懸吊式和落地式的區別,分別對機房頂面和地面有特殊要求。醫院設備部門應根據臨床科室的需求有針對性地選擇設備。

患者類型的不同對規劃也有很大影響。急診較多,對機房入口通道的通暢性要求較高;重癥患者較多,對機房內急救設施的要求較高;設備使用率高, 對機房滅菌消毒效率要求較高;手術類型多,則要求機房面積更大,以便放置不同手術需要的輔助設備。


2. 根據規劃合理選址,因地制宜。

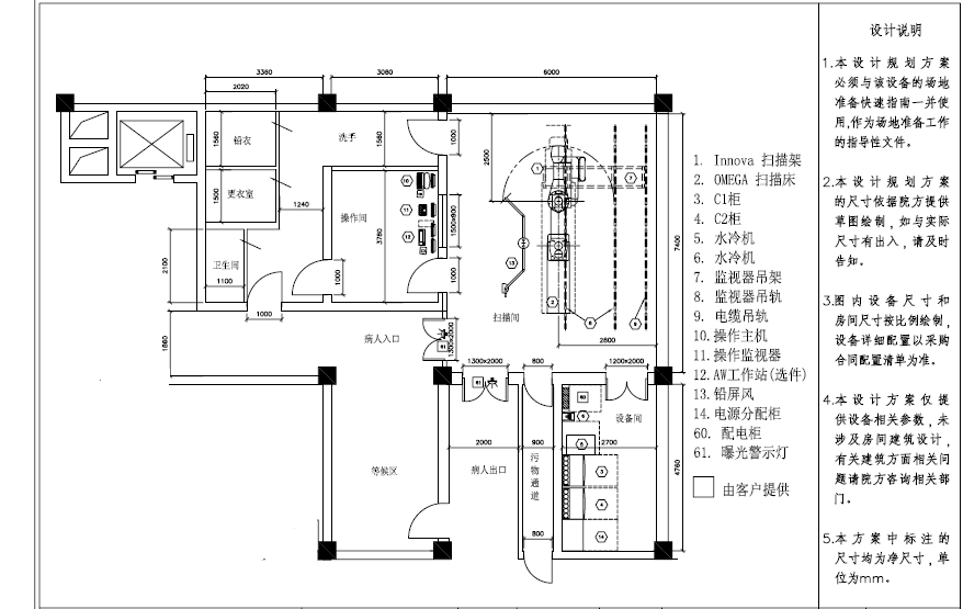
合理地布置導管室的各種功能區域,根據已有房屋結構科學設計流程。一般導管室要求至少有 3 個功能分區:淤放置 DSA手術室設備機架、導管床等主要設備,進行手術和其他操作的手術室以及對設備進行控制的控制室, 是 DSA手術室的主要功能區;于放置高壓機柜、圖像采集重建機柜、水冷機柜等主要設備的設備間;盂手術更衣、洗手、污洗、家屬談話等手術輔助區域。3 個區域應相對獨立,標志清晰。還要根據醫院整體設計的要求,分別設置患者、工作人員出入口、污物出口。整個設計應在符合規范的情況下方便檢查設備和開展治療,照顧醫、護、患、工勤人員、設備工程師等各方面的需求。圖2為根據實際建筑格局制作的 DSA 設備機房及其附屬用房設計圖。

射科的中部,兩邊是其他機房,整個用房呈梯形。設備廠家建議的 DSA 設備手術操作間面積為 7500 mm6 000 mm,實際安排中,院方盡可能地擴大機房,留出方正的空間,滿足設備要求;利用梯形的 2 條斜邊設計控制室和設備間;設計準備間,滿足了手術緩沖區的要求。更衣室、談話間和手術洗手間應有足夠空間,保證醫患通道的獨立。特別需要注意的是,為了節省空間,將設備附屬機柜放置在操作室內的做法會造成機柜過熱等問題,影響設備使用,故應確保設備機柜的獨立房間和專用空調。

綜上所述,DSA 設備機房的規劃選址應做到功能分區明確,保證操作室面積和醫患通道的獨立,設置手術緩沖區,為 DSA 設備的使用帶來工作流程上的便利。


3. 機房建設應注意規范性堯便利性和擴展性

1)放射設備機房的裝修應重點關注放射防護。根據GBZ 130—2013《醫用 X 射線診斷放射防護要求》[7],介入 X 線設備機房屏蔽防護鉛當量厚度應不小于2 mm。實際工作中,一般采用 3 mm 厚度的鉛當量, 以保證工作人員和周圍公眾的放射安全。操作室對控制醫院感染的要求也很高,需要配備動態空氣消毒器,同時利用獨立空調保證操作室、設備間的溫濕度分別滿足手術和設備的要求。

2DSA 設備是高功率設備,必須嚴格滿足設備的供電要求。一般要求單獨的三相五線 380 V 供電,功率、線徑、斷路器、接地、配電柜均有明確要求,應嚴格遵循。DSA設備的自重很大,一般要求樓板的承重在 500 kg/m2 以上,如果不符合要求,應做相應加固。懸掛式 C 臂和顯示器吊架均需安裝吊軌, 需要醫院準備槽鋼固定架。C 臂的滑動對固定架的水平度要求很高, 例如 GE 要求相鄰定位孔之間垂直誤差小于依1.5 mm,飛利浦要求垂直誤差小于 0.5 mm/m,故固定架的焊接安裝一定要由高水平焊工完成, 場地工程師應實時檢查施工質量, 出現誤差過大及時返工。落地式機架的地面水平度要求也很高,需要 25 mm以上厚度鋼板作為加固基礎。圖 2 DSA 設備機房及其附屬用房設計圖(單位mm

3)機房裝修時應充分考慮設備使用的便利性。盡可能地保證DSA 設備手術操作間的面積,就是為了便利設備的使用:心血管介入生理儀、血管內超聲、血流儲備分數檢測儀、射頻消融儀等設備,外周血管介入需要配備高壓注射器、超聲設備、除顫儀、心電圖機、微泵等通用設備,這些設備都是放置在操作間內的。為了取用方便,建議將常用導管導絲等耗材及臨時起搏器等急救設備也放在操作間備用。便利性的另外一個方面體現在 DSA 及附屬設備的配置上,例如:監護儀建議配 2 路有創血壓;設備帶建議在頭側和術者側配置 2 套氧氣負壓接口;考慮到 DSA 設備手術新的發展趨勢,建議配 2 副橈動脈穿刺臂托;心血管介入的手術車應長于放射介入的;等等。上述配置是為了保證手術的安全和質量,而醫療安全和質量常常體現在細節的處理上。

4)機房的擴展性主要體現在接口的預留上??紤]今后有可能增加大功率設備,故需預留部分功率余量;墻面及假天花上方多預留強弱電接口,以備無線設備以及攝像頭安裝使用。


4. DSA手術室設備安裝和驗收使用規范

設備安裝的優劣能直接體現在設備的使用效率和使用壽命上,良好規范的安裝能更好地發揮設備的作用。各大廠商對安裝過程一直有規范化的流程, 醫院設備部門應全程在場,督促安裝工程師嚴格按流程安裝,并根據需要配合工程師安裝。需要注意的要點有:各部件懸吊、擺放的水平度控制是否精確, 穿線是否有序和整潔,各種接頭的連接是否牢固,術者站立位置的電纜溝是否使用牢固且無彈性的板材覆蓋,軟件安裝是否與合同相符等。

驗收時,應由放射科介入醫生、技師、心內科醫生共同參與驗收,確保合同規定的功能完整。特別需要注意的是,除了硬件配置以外,DSA 的各種功能由設備廠家應用工程師與操作技師、醫生共同逐項演示確認。放射設備的驗收還涉及射線劑量檢定,應由第三方檢測機構現場檢測,確保設備性能以及射線防護等各個指標符合臨床和有關部門的規定。

正式開始使用之前,操作技師、醫生、護士都應該進行相應培訓,相關工勤人員也應進行醫院感染、設備清潔等事項的培訓。綜上即為 DSA 設備安裝和導管室建設中的原則和實施中應注意的一些具體問題。根據以上原則建設的導管室,既要符合設備環境要求,又要滿足不同介入手術科室的要求,還要方便醫生、技師、護士的操作,使其布局合理、設施完整、環境整潔明亮,受到醫患好評。

DSA 設備對安裝的要求非常嚴格,好的機房設計與安裝能夠延長設備的使用壽命,提高設備的使用效率,反之,則會影響設備的正常使用;導管室注重流程設計,需要功能齊全又符合各種規定。醫院設備部門在設備安裝與導管室建設的過程中,應與設備廠家、使用科室充分溝通,精密設計,堅持原則,嚴控質量,全程參與;要兼顧設備安裝的質量與使用的便利性,注意考慮今后擴展的需求,特別是要從細節著手,保證設備長期使用的穩定性。在今后的建設中,可以參照人因工程學的理念,為醫、護、患設計更人性化、更舒適的導管手術室。

相關案例RELATED PRODUCTS

TOP

400-666-1693

180 1646 0418